

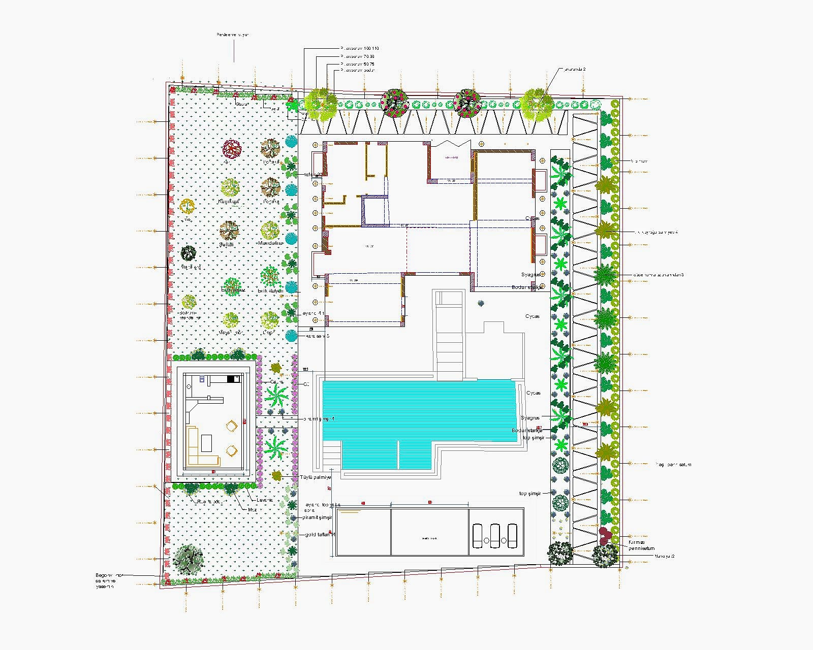
Düzenli ve estetik yeşil alanların oluşturulmasında projelendirmenin önemi büyüktür. Projelendirme safhasında, mevcut alanın şartları değerlendirilerek bitkilendirme, ve çim seçimleri yapılarak sürdürülebilir bir peyzaj alanı oluşturulur.
Nil peyzaj ailesi ,siz değerli müşterilerimize ihtiyacınıza yönelik bahçeleri projelendirip size uygun maliyetlerle keyifle yaşayacağınız yeşil alanlara dönüştürüyoruz.